5408 Raysdale Road #101, Glen Allen, VA 23059 (MLS # 2601644)

Price $445,520
Status Active
Beds 3
Baths 3 Baths
Home size 1,572 sqft
Lot Size n/a
Days on Market 14
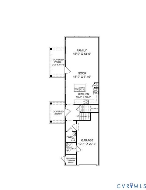
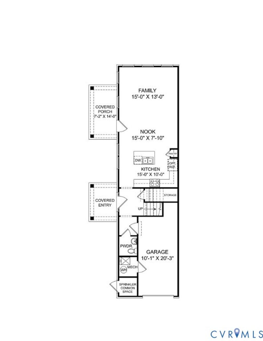
READY JUNE 2026! The Devon welcomes you on the first floor where you'll find the kitchen with center island and pantry, offering wonderful storage! The kitchen boasts beautiful granite counters, gas cooking and the island overlooks the dining area and family room, creating a great space for gatherings or everyday living. A covered porch is located just off the family room. Upstairs, the Primary Suite has a large walk-in closet and private bath with walk-in tile shower and double vanity. Two additional bedrooms, a jack & jill bath with double vanity and laundry completes the tour. Introducing, The Pointe at Twin Hickory, a BRAND-NEW CONDO community nestled within the renowned Twin Hickory community. The Pointe at Twin Hickory is located in the heart of Short Pump. The Pointe will feature commercial and retail spaces, making this community a true, "live, work, play" destination. (Condo is under construction - Photos/visual tours are from builder's library & shown as an example only. Options will vary).
Property Type(s): Condo/Townhouse/Co-Op
Last Updated 1/21/2026 Tract Twin Hickory
Year Built 2026 Community 34 - Henrico
Garage Spaces 1.0 County Henrico

SCHOOLS

Elementary School Twin Hickory
Jr. High School Short Pump
High School Deep Run

Additional Details

AIR Central Air
AIR CONDITIONING Yes
AMENITIES Maintenance Structure, Trash
APPLIANCES Dishwasher, Gas Cooktop, Gas Water Heater, Microwave, Oven, Tankless Water Heater
AREA 34 - Henrico
CONSTRUCTION Frame, Stone, Wood Siding
GARAGE Yes
HEAT Forced Air, Natural Gas
HOA DUES 291|Monthly
INTERIOR Double Vanity, Granite Counters, High Ceilings, Kitchen Island, Pantry, Walk-In Closet(s)
PARKING Attached, Direct Access, Driveway, Garage, Paved, Parking Lot
POOL Yes
POOL DESCRIPTION Outdoor Pool, Community
SEWER Public Sewer
STORIES 2
STYLE Two Story
SUBDIVISION Twin Hickory
TAXES 3876
WATER Public

Location

 

Contact us about this Property

 / 
We respect your online privacy and will never spam you. By submitting this form with your telephone number you are consenting for Realty Richmond to contact you even if your name is on a Federal or State "Do not call List".

Listed with HHHunt Realty Inc

All or a portion of the multiple Listing information is provided by the Central Virginia Regional Multiple Listing Service, LLC, from a copyrighted compilation of Listings. All CVR MLS information provided is deemed reliable but is not guaranteed accurate. The compilation of Listings and each individual Listing are ©2026 Central Virginia Regional Multiple Listing Service, LLC. All rights reserved.

IDX information is provided exclusively for consumers’ personal, non-commercial use, that it may not be used for any purpose other than to identify prospective properties consumers may be interested in purchasing

Last Updated: 2/4/26 12:40 AM PST

This IDX solution is (c) Diverse Solutions 2026.

Email a Friend
Skip to content