4249 Inca Drive, North Chesterfield, VA 23237 (MLS # 2531109)

Price $415,000
Status Active
Beds 3
Baths 3 Baths
Home size 3,120 sqft
Lot Size 15,290 sqft
Days on Market 11
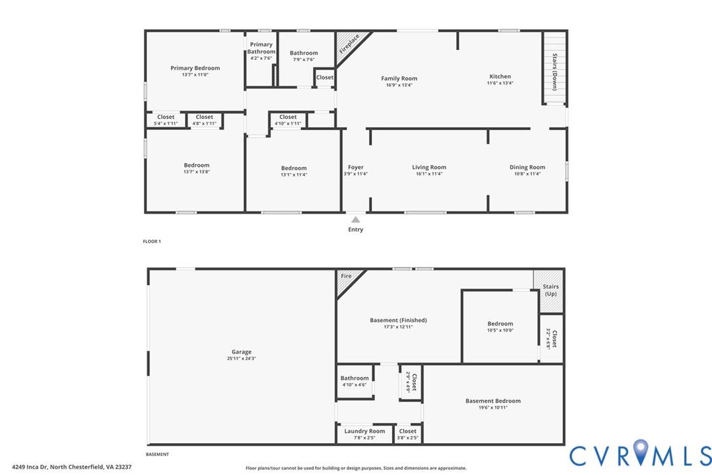
Exceptional Living Redefined: Space, Style, and Functionality! Welcome to this beautifully maintained rancher in the heart of Chesterfield, offering a spectacular setup for multi-level living. The curb appeal starts with a full porch and classic brick foundation, served by a double-wide paved driveway and attached carport with a side-loading 2 car garage. The main level boasts an open, inviting feel. The front living room, illuminated by recessed lighting, transitions smoothly to the dining room, featuring a charming chair rail, both grounded by resilient LVP flooring. The kitchen is ready for gourmet meals with stone countertops, a wealth of cabinet space, recessed lighting, and rich hardwood flooring. Toward the rear, the family room provides warmth and ambiance with a wood-burning fireplace and direct access to the spacious outdoor deck and fenced yard, perfect for year-round enjoyment. The primary suite features a full bath ensuite and elegant hardwood floors. Two additional bedrooms have double closets, ceiling fans, and matching hardwood flooring. The expansive finished basement is a standout feature, serving as a fully equipped secondary suite. It offers a cozy living room with a second wood-burning fireplace, a private bedroom, and a convenient half bath. The large open flex space is perfect for a home gym, theater room, or substantial office. The basement provides sheltered entry into the oversized two-car garage. The 30x24 carport is ideal for boat storage or RV storage (NO HOA)! The 2 tier trex deck is ideal for entertaining! Enjoy unparalleled local access to nature and commerce! You are just moments from major recreation at Pocahontas State Park and Rockwood Park, while key routes like I-95 and Route 1 and retail centers along Route 10 are easily accessible for convenient commuting and shopping. Recent updates include a newer roof, fireplace flue, windows, neutral paint throughout, and so much more! Don't miss the opportunity to experience this home's versatile design, schedule your viewing today!
Property Type(s): Single Family
Last Updated 11/18/2025 Tract Indian Springs - Chest
Year Built 1971 Community 52 - Chesterfield
Garage Spaces 2.0 County Chesterfield

SCHOOLS

Elementary School Beulah
Jr. High School Salem
High School Bird

Additional Details

AIR Ceiling Fan(s), Central Air, Electric
AIR CONDITIONING Yes
APPLIANCES Cooktop, Dishwasher, Electric Cooktop, Electric Water Heater, Microwave, Oven, Refrigerator
AREA 52 - Chesterfield
BASEMENT Finished, Full, Yes
CONSTRUCTION Brick, Vinyl Siding
EXTERIOR Storage
FIREPLACE Yes
GARAGE Yes
HEAT Forced Air, Oil
INTERIOR Ceiling Fan(s), Granite Counters, Master Downstairs, Recessed Lighting
LOT 0.351 acre(s)
PARKING Basement, Carport, Direct Access, Driveway, Garage Door Opener, Paved
POOL DESCRIPTION None
SEWER Public Sewer
STORIES 1
STYLE Ranch
SUBDIVISION Indian Springs - Chest
TAXES 3280.54
WATER Public
ZONING R7

Location

 

Contact us about this Property

 / 
We respect your online privacy and will never spam you. By submitting this form with your telephone number you are consenting for Realty Richmond to contact you even if your name is on a Federal or State "Do not call List".

Listed with Real Broker LLC

All or a portion of the multiple Listing information is provided by the Central Virginia Regional Multiple Listing Service, LLC, from a copyrighted compilation of Listings. All CVR MLS information provided is deemed reliable but is not guaranteed accurate. The compilation of Listings and each individual Listing are ©2025 Central Virginia Regional Multiple Listing Service, LLC. All rights reserved.

IDX information is provided exclusively for consumers’ personal, non-commercial use, that it may not be used for any purpose other than to identify prospective properties consumers may be interested in purchasing

Last Updated: 11/28/25 5:48 PM PST

This IDX solution is (c) Diverse Solutions 2025.

Email a Friend
Skip to content